服务热线:0591-39010577 / 85236228
快捷导航
  • 1

[楼市杂谈] 大唐玉融印象项目设计鉴赏

爱吃橙 发表于 2021-11-16 09:18:45 | 显示全部楼层 |阅读模式 | 来自福建
4329 0

请登录查看大图。42+万用户选择下载看福清App享受全功能!

您需要 登录 才可以下载或查看,没有账号?立即注册 |

x
091415xw53qa77vzvq7iwz.png


在城市化加速进程的新环境下,人与建筑之间的连结,需要寻找到与时代、与城市、与场域对话的端口。

福建福清,雅称“玉融”,由陆地、半岛和岛屿组成。温暖湿润,夏无酷暑,冬无严寒,东隔海坛海峡,谓“枕山面海”。
SUNS尚石设计在思考其项目整体时,希望将福清的城市印象融入其中,呈现自然与城市、城市与人之间的连结。


091415omnbhpn35vq5m3iv.png


大唐·玉融印象售楼处构造一个未来沉浸式的自然艺术生活馆,满足来访者在物质之外,精神与社交多层次的需求,在变化空间中自由畅游,探索生命,感受自然。


091415xjrd8j6yaxrj6ya9.jpeg



091415y2zjeaj8asxs120i.png

海的轮廓


我们希望通过“风起扬帆、乘风破浪、与海共居、深海畅游”四个主题,分别对海的轮廓产生连结感和交互感。


091415lih0mzhh4k5g00mw.png

复合体验海与人的连结

091415aqbubbazd55i909r.png

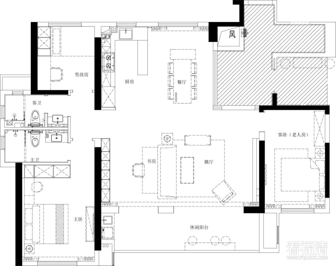
1F平面图

091415c75yosrd16qfq2yy.png

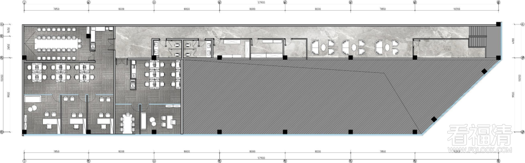
2F平面图


091416z5b281s51p8i27mm.png

风起扬帆


前厅接待区


SUNS尚石设计取水波纹的形状,包裹整个入门前厅;掠过海面的每一寸顺风,都是自然对远航的祝愿。


091416th8mh5xh5z2t5tiv.jpeg
091416wxadwccwdgj1n2a2.jpeg
091416d8ingj8rf68g38gi.jpeg


作为空间的过渡,艺术展示区的设计打破单一的空间体验与视角。流动不息的海浪,经由艺术化的转译,演变为蜿蜒流畅的金属雕塑,令空间在虚实相间的视觉层次中,如水般通透清澈。


091416sm1y5kjj6k4y1lkt.jpeg
091416dce4nn2nsenbveeb.jpeg
091416b6146u6uzjrdmvr3.jpeg




091417p22axidhvn6avb25.png

乘风破浪


沙盘区

091417n1ixmgdxz5g1ds6q.png


“羁鸟恋旧林,池鱼思故渊”。携“鱼归故里”这一概念为出发点,把鱼群的形态用艺术化的形式结合到空间中。
在平淡的生活里,也会想念曾经的波澜壮阔,亦是鱼群对海洋的眷恋,亦是人心所向。


091417zjzeojz1syst5fjc.jpeg



091417qxvkcq6v0tqxp666.png

与海共居


洽谈区/深洽谈区


091417e3xru44kzwu9t43m.png

“船桨”组成的屏风包裹人体在这个区域里的一举一动,在开放的空间里营造相对通透的私密性。
融入海洋的情怀,并强调艺术的美感,凸显有品质的陈列,赋予整个空间以生命的灵动与自由,营造出一抹闲情,一抹雅致。
091417lpwbz0b58qcwum5w.jpeg
091417vmilflgvl73iqdmg.jpeg


我们可以在其中感到放松和惬意,是人类对于海洋的原始依存感。


091417z196q1qj6padjped.jpeg
091417u1dsdsdu1g1py1g1.jpeg
091418g51gyt533ffb11c1.jpeg

水吧区

091418j637fx65rsqspz15.jpeg

儿童区

091418qk49j26qjlm64299.jpeg
091418sixz54y2664oj5xo.jpeg
091418a01s0cs4zjzz0s7s.jpeg


儿童区同样为孩子们打造一片“大海”,波波池增添售楼处的可玩性,待孩子们长大后,再去追逐属于自己的星辰大海吧。

人与自然的关系一直介于“适应”与“改造”的意图之中,SUNS尚石设计希望建筑与自然之间的构建。与此同时也界限出了建筑路径以及动线,包括光的进入、变化模式。彼此相望,独立存在,又相互映衬。“融入它、成为它、享受它”,无界之境重构空间的价值。
091418mf9kl6p6rhpevl72.png

传承典雅


样板间


091418mzo3113ll7ao3lza.jpeg


在经历乘风破浪后所拥有的财富,心系的是传承。不仅是物质财富的传承,更重要的是精神传承、家族常青。


091419rqwwgpp2qd52bauq.jpeg


在设计大唐·玉融印象样板间的过程中,SUNS尚石运用经典优雅的设计风格,为中产新贵们打造稳重、典雅的品质居所。


091419t2j7pj71b3pp9ew3.jpeg


空间整体以灰白色调为主,以素色为基调,高质感的选材加以高级灰以及灰橙色点缀。


091419q446lylye8lvb8yc.jpeg
091419jdut4wkdsct9snnz.jpeg


餐厅桌椅选用相同大地色系的轻奢皮椅,放置肌理感的柜子与其搭配,岁月在优雅间流淌。


091419nhkdl087kw7lbx7j.jpeg
091419x4d9dh4f0zti1thz.jpeg


壁柜融合空间整体设计风格摆放艺术品,同时又不失实用性,将过往的荣誉和纪念一起收藏。


091419gabgqb3aqqce7aal.jpeg
091420w06n802ioo7zfii9.jpeg


主卧床头选用大理石装饰和磨砂玻璃床头灯,相比强烈的艺术感,更多是一种对艺术的沉淀表达。


091420vd8zjq0ssqp0iq0h.jpeg
091420kcpc0wznggvugcd9.jpeg
091420n4b04j4ruspbr1pb.jpeg


次卧延展整体空间一致的视觉表达以外,在艺术的运用上多了一份包容,这份包容留给父母,留给远道而来的客人。


091420yduwdcux4nt08udn.jpeg
091420st2yu3m7fiymxyfi.jpeg


将海底搬入孩子的卧室,在艺术化的转译中诠释对童真的理解。扬帆入梦的小床、在墙面上游动鲸鱼、富含趣味的软饰……让孩子成为自己的船长,在夜里起航。除了满足他的童真和兴趣之外,更是融入了一份优雅、一份传承。

大唐·玉融印象样板间最大程度上释放出精致奢雅的空间,用精简的态度贯穿整个空间,满足主人对于生活品质的追求。SUNS尚石认为居住之所不仅是身心的栖息,也可以是对自己精神意志的收藏,更可以是对下一代的寄托与传承。
091421lf55ewnm5ducofum.jpeg

平面图




  项目信息  
Project information

项目名称:大唐中梁·玉融印象
项目地址:福建省福清市清融大道
业主单位:大唐地产海峡公司
业主代表:陈颖、林智强、陈昱、张雪清
硬装设计:奕舍建筑装饰(上海)有限公司
软装设计:深圳市尚石设计有限公司
项目类型:售楼处、样板房
项目团队:冯俊桃、黄佳敏
品控中心:彭林、詹妍
项目摄影:LLAP建筑摄影工作室、艺间坊
建筑面积:售楼处509㎡、样板房124㎡
完成时间:2021年8月




看福清——服务全球福清人!
回复

使用道具 举报

全部回复(0)
您需要登录后才可以回帖 登录 | 立即注册 |

手机访问|手机App|Archiver|手机版|小黑屋|关于我们

© 2025 FQLOOK.cn|国家高新技术企业|福清市互联网示范企业|福清市IP访问量前三企业

闽工商网备第350181100079485号|闽B2-20250200|闽公网安备35018102000007号 |闽ICP备07503243号

侵权举报:本页面所涉内容为用户发表并上传,相应的法律责任由用户自行承担;本网站仅提供存储服务;如存在侵权问题,请权利人与本网站联系删除!举报电话:0591-39010577(转8号按键)

GMT+8, 2025-12-7 23:45 , Processed in 0.072644 second(s), 15 queries , MemCache On. |Powered by Discuz! X3.4